江河為耐磨管道項目提供哪些技術支持?
管線圖主要包括“三部分”內容:
1、圖形:表明所施工的管段由哪些組件組成以及它們在三維空間的位置;
2、工程數據:包括管道設計參數、各種尺寸、標高和管道標志、管道編號、安裝檢驗的主要要求等標注說明;材料清單中開列組成該單線圖的管段所有組件的型號、規格、數量和使用的標準規范。
3、圖例:指北針和標題框等相關內容。
⑴標題框:主要明確管道安裝工程的名稱、單線圖號、管線標號以及繪制、審核等人員簽字及相應的日期;
⑵指北針:管道基本走向的方向指示;管道主要參數:主要有設計壓力、設計溫度、介質名稱、管道的類級別、設計規范、管道安裝施工的驗收規范;(3)圖例:管道主要涉及的元件以及不同敷設方式下管子的繪制符號表示的說明;
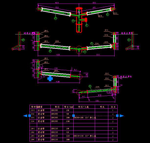
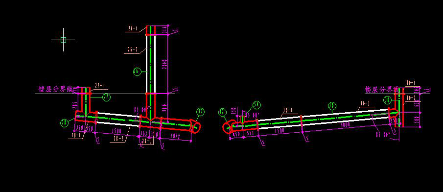
我們江蘇江河機械機械有限公司擁有完善的技術團隊,我們能做到的就是:針對客戶提供給我們的整套管線圖,從三視圖以三個角度來進行詳細的分解,得到正確的長度、角度、彎曲半徑;對每條管線進行尺寸的標注,分解成詳細的生產圖。具體可以形成軸側圖方法繪制的管道單線圖,準確表明每段管子的規格、長度、各段標高、焊口的數量及大致位置等。對于管道材料的規格和牌號以及相應的材料標準、對于管道上涉及到較多的元件情況下,也可以考慮增加管道元件基本信息的材料表的方式來表達。
碰到有問題的地方及時與客戶進行溝通,給出正確的可行性建議,耐心等待客戶給出的明確解決方案。
【以上文章來源于江蘇江河專注鍋爐燃燒器耐磨耐熱配件的公司(www.jhjx66.com),轉載請注明出處喲!】
下一篇:你的稀土耐磨管是否是這樣的?
上一篇:網絡交易的背后我們在做什么?















